Molemmin puolin imevä radiaalipuhallin eteenpäin kaartuvin siivin. Varustettu energiaa säästävällä EC-moottorilla, jossa on integroitu käyttö- ja ohjauselektroniikka.
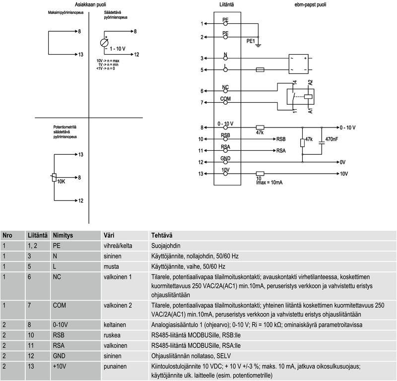
– Kierrosnopeutta ohjataan 0-10 V signaalilla tai PWM:llä
– Ulostulo 10 VDC maks. 10 mA
– Vuotovirta < 3,5 mA; IEC 60990 mukaisesti
- Alijännitte / vaihehäiriötunnistus
- Elektroniikka ja moottori ylikuumenemissuojattu
- Käyttö- ja häiriöilmoitus
- Vikailmoitusrele
- Integroitu PID-säädin
- Tehonrajoitus
- Moottorin virran rajoitus
- PFC, aktiivinen
- RS485 MODBUS-RTU
- Ohjausliitäntä turvallisesti verkosta erotetulla SELV-potentiaalilla



