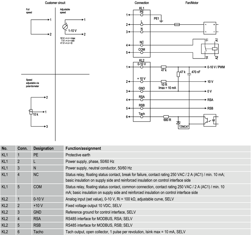
RadiFit-puhaltimessa on energiatehokas EC-moottori, jossa tehdasasennuksena käynti- ja ohjauselektroniikka. Tämän ansiosta RadiFit-puhallinta voidaan säätää 0-10 V signaalilla esimerkiksi VAK:lla.
RadiFit on suoravetoinen, molemmin puolin imevä kaavullinen radiaalipuhallin eteenpäin kaartuvin F-siivin.
Moottori on kiinnitetty kaapuun tärinää vaimentavalla ripustuskiinnityksellä.
Erittäin kompakti RadiFit-puhallin soveltuu monipuolisuutensa ansiosta mm. saneerausilmanvaihtoon ja moniin ilmanpoisto- ja LTO-laitteisiin.
– Kierrosnopeutta ohjataan 0-10 V signaalilla tai PWM:llä
– Ulostulo 10 VDC maks. 10 mA
-Tachoulostulo
– Hälytysrele
– PFC, aktiivinen
– RS-485 MODBUS-RTU
– Pehmeä käynnistys
– Vuotovirta < 3,5 mA EN 60950-1 mukaisesti
- Kondenssivesireiät roottorin puolella



