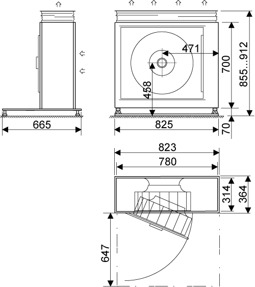
Suoravetoinen yhdeltäpuoleltaimevä radiaalipuhallin taaksetaivutetuin siivin ja puolikaavulla. MXK voi korvata tiettyjen kojeiden puhaltimet ja se voidaan asentaa imukammioon. Puhaltimen imupuolen voi myös kytkeä kanavaan. Puhaltimen siipipyörä ja moottori on kiinnitetty avattavaan luukkuun, mikä helpottaa puhdistusta. Toimitetaan värinävaimennetulla alustalla ja painepuolen kangasliittimellä. Imukartio on varustettu virtausyhteillä. Kangasliitin imupuolelle sekä suojaverkot sisään- ja ulostulolle toimitetaan lisävarusteina. Säädin paineelle ja/tai lämpötilalle toimitetaan varaosana.
Saatavana myös palosuojattuna (200 C , 1h)



